$760,000

134 Park Street, Queenstown

Save Property
Check me out
3 Bedrooms
2 Bathrooms
1 Lounges
2 Carpark Spots
500.00 Property Footprint
250 m² Land Footprint

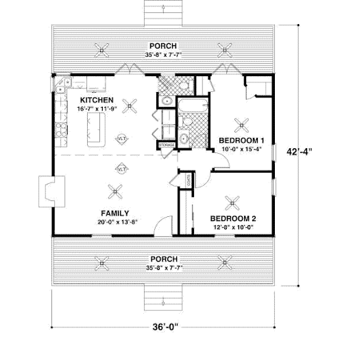
Property Floor Plan

Property Image 1

Property Description

his spacious 160sqm home offers incredible value for those with an eye for opportunity. Tucked away at the rear for maximum privacy, it features three bedrooms, exceptional storage throughout, an internal-access double garage, and solid, low-maintenance brick construction that stands the test of time.

While the decor would benefit from a little TLC, the home's great bones and smart layout make it an easy choice for first-home buyers, downsizers seeking space, or investors looking for strong returns.

Our instructions are clear: this property will be sold on auction day. Don't just sit back and watch - that strategy will end in disappointment. Contact us today to get auction-ready and secure your place among the savvy buyers who recognise potential when they see it!

Property Details

Property Type:
Houses
Category:
sale
Street Address:
134 Park Street, Queenstown
Suburb:
Queenstown
City:
Queenstown
Region:
Queenstown-Lakes District
Land Area:
250m²
Floor Area:
500.00
Floor to Land Ratio:
2.00 (Higher density)
Site Coverage:
200.00% of total land
Annual Property Rates:
$2,000
Building Efficiency:
166.67m² per bedroom

Location

Agent Information

Agent Image

Bridget Homes

Gold Bridge Homes
Company Logo

Building Performance Details

Comprehensive property specifications and performance metrics

Energy Systems

Solar Power System

Not_installed

EV Charging

Planned

Heating Systems

Heat Pump

Cooling Systems

Heat Pump

Lighting

Led

Environmental Impact

Water Efficiency

Select rating

Carbon Footprint

N/A

Sustainable Materials

N/A

Renewable Energy

Select integration level

Construction and Materials

Exterior Cladding

N/A

Interior Cladding

N/A

Construction Type

Mixed Materials

Insulation and Glazing

Wall Insulation

R- Rating

Roof Insulation

R- Rating

Windows

N/A

Air Tightness

ACH@50Pa

3D Walkthrough

No 3D Walkthrough available

Airbnb Price Estimator

Estimated Rate
$200 - $500
Based on similar properties in the area

Rental Price Estimator

Estimated Rental Rate
$500 - $750
Based on similar properties in the area

Insurance Risk Rating

Has Insurance/Can Be Insured

This property is currently insured or eligible for insurance coverage

Based on location, building materials, and natural hazard exposure
Mortgage Calculator

Air Metrics

Air Quality Rating
N/A
Grade N/A
Air Replacement Time
N/A
N/A
Temperature Stability
N/A
N/A

Based on continuous monitoring and environmental sensors

Key Systems

Water Source

N/A

Sewerage System

N/A

Power Supply

N/A

Internet Connection

N/A

Based on council records and property documentation

Solar Exposure Metrics

Daily Sunlight
Less than 4
Less than 4 / day
Seasonal Variation
Low
Low
Solar Potential
Low
Low

Based on annual solar studies
and site analysis

Thermal Performance Metrics

Heat Retention
Low
Low
Thermal Bridging
High
High
Temperature Differential
N/A
N/A

Based on thermal imaging and temperature monitoring

School Zones (10 KM)

Nearby Schools (10 KM)
Loading...
Loading nearby schools...
🏫
No Schools Found
We couldn't find any schools in the nearby area.

Property Documentation

Download available property documents

Essential Documents

Land Information Memorandum (LIM)

Required for property listing

Download

Sale & Purchase Agreement

REINZ Standard Form (Required)

Download

Additional Documents

Building Report

Independent Assessment

Download

Login Required

Login to see Property Documentation

Contact Selling Agent Bridget Homes

Thank you! Your message has been sent successfully. The agent will contact you soon.
Error! Something went wrong. Please try again.
1 of 10
Property Image